Hertfordshire

Inspiration Hertfordshire

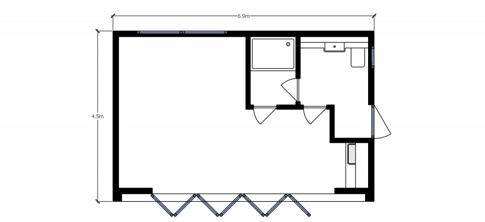
A home gym and changing room in the garden room in Broxbourne

This garden room is a home gym and a pool changing room with bi-folding doors with integral blinds for privacy. Inside air con keeps workouts comfortable, while the hardwood decking provides social space outside. Cedar screens hide the garden sheds.

Floor Plan